Residential Design  ·  Brevard County, FL

Full-Service
Custom Home
Plans

From site-specific schematic design through permit-ready construction documents — Revit-modeled, engineer-coordinated, and built for Florida's coastal code environment.

Typical Set
20–30
Sheets
Wind Design
150
MPH Exposure D
Code Base
FBC
2023, 8th Edition
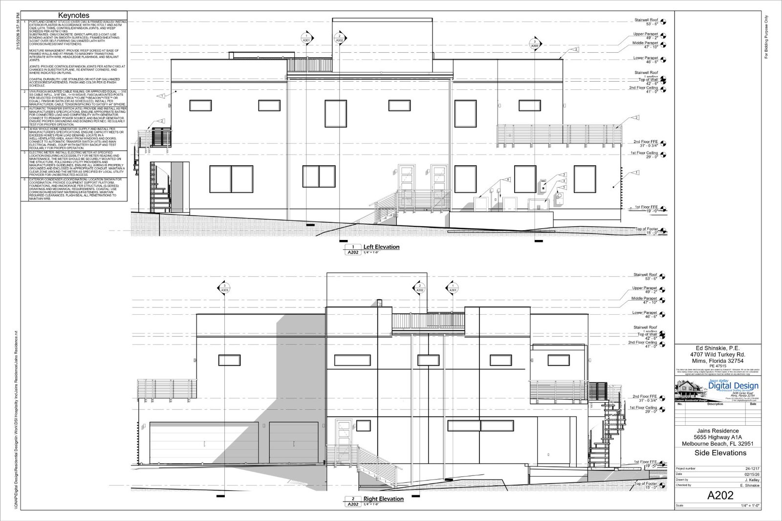
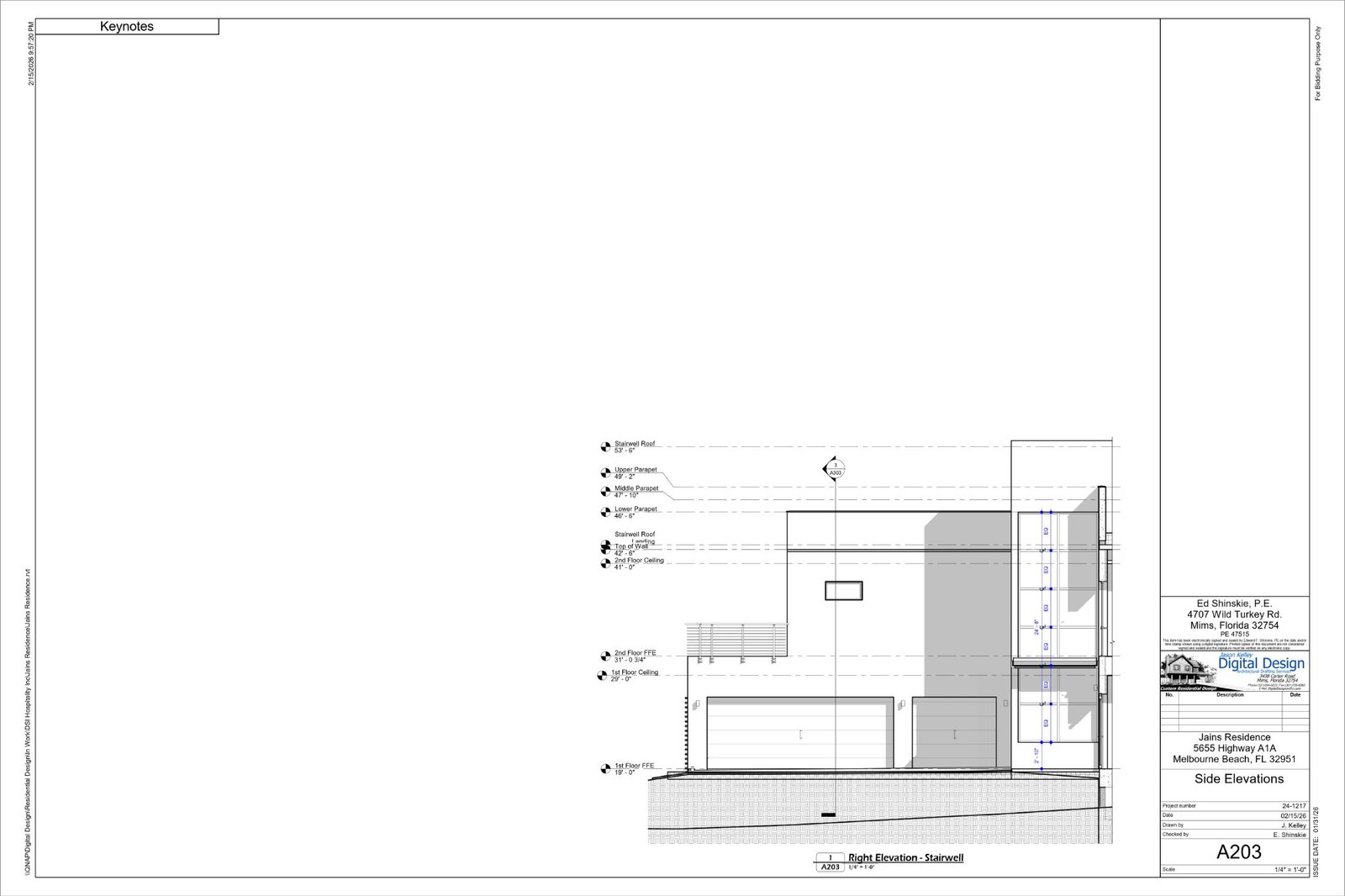
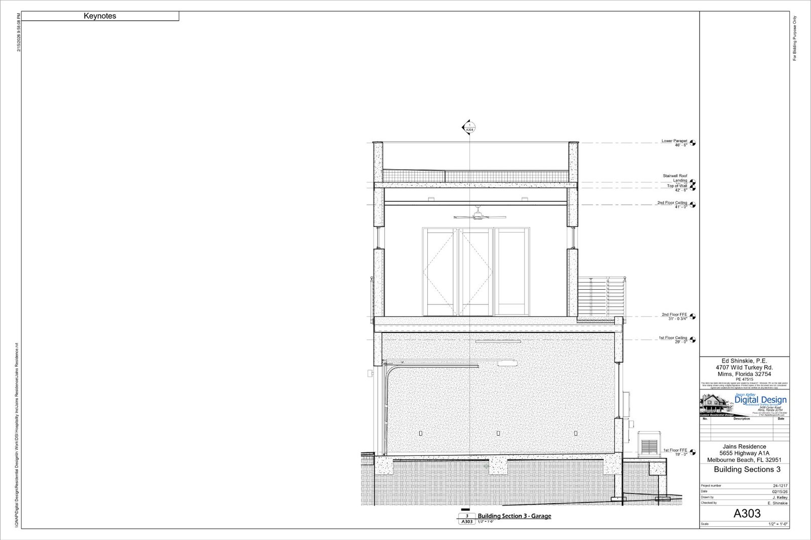
Jains Residence — Melbourne Beach
Jains Residence  ·  Melbourne Beach, FL

Completed Custom Home Work
in Brevard County

2-Story Custom Residence  ·  Beachfront  ·  Melbourne Beach
Jains Residence
5655 Highway A1A  ·  Melbourne Beach, FL 32951  ·  Project No. 24-1217  ·  February 2026
SR Suburban Residential
Brevard County
FBC 2023, 8th Ed.
150 MPH Exposure D
FDEP Turtle Lighting
Cover Page 1st Floor Layout 2nd Floor Layout Pool Plan Front Elevation Building Section 1
G100  ·  Cover Page
Jains Residence — 5655 Highway A1A, Melbourne Beach
Area Schedule
  • 1st Floor Living 2,574 SF
  • 2nd Floor Living 2,597 SF
  • 3-Car Garage 778 SF
  • Upper Porch 717 SF
  • Front Balcony 283 SF
  • Rear Balconies 268 + 132 SF
  • Total Living ~5,171 SF
Program
  • Master Suite + 2× WIC 2nd Floor
  • Bedrooms 1–4 Both Floors
  • 4 Full Baths + Powder Room
  • 2 Office Spaces Both Floors
  • Lap Pool + Custom Jacuzzi Exterior
  • 2× Covered Terraces 1st Floor
  • Spiral Stair + Open Bridge 2nd Floor
Scope of Documents
  • Architecture A-Series
  • Building Sections (4) + 3D Views A301–A305
  • Stair Details + Isometric A440–A441
  • Structural / Roof Plan A112
  • Plumbing (2 Floors + Riser) P101–P201
  • Electrical (2 Floors + Notes) E100–E202
  • Turtle Lighting (3 Plans + Cutsheet) E101–E501
Complete Sheet Index — 29 Sheets
G100 Cover A101 1st Floor A102 2nd Floor A103 Pool Plan A112 Roof Plan A201 Front/Rear Elev. A202 Side Elev. A203 Stairwell Elev. A301 Section 1 + 3D A302 Section 2 + 3D A303 Section 3 Garage A304 Section D + 3D A305 Wall Sections A440 Stairwell Plans A441 Stair Details A501 RCP 1st Floor A502 RCP 2nd Floor A601 Window/Door Schedule P101 Plumbing 1st P102 Plumbing 2nd P201 Plumbing Riser M100 Mechanical Notes E100 Electrical Notes E101 Ext. Lighting Site E102 Ext. Lighting 1st E103 Ext. Lighting 2nd E201 Electrical 1st E202 Electrical 2nd E501 Lighting Cutsheet
1-Story Custom Residence  ·  Prairie / Craftsman  ·  Vero Beach
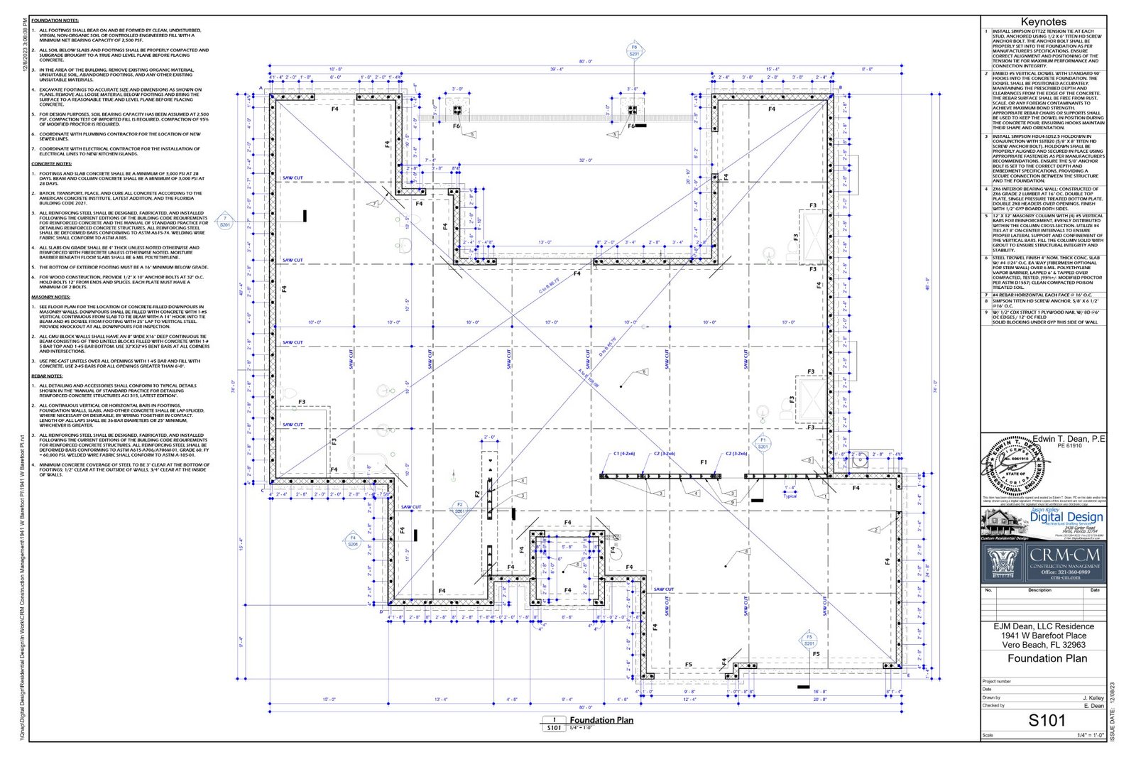
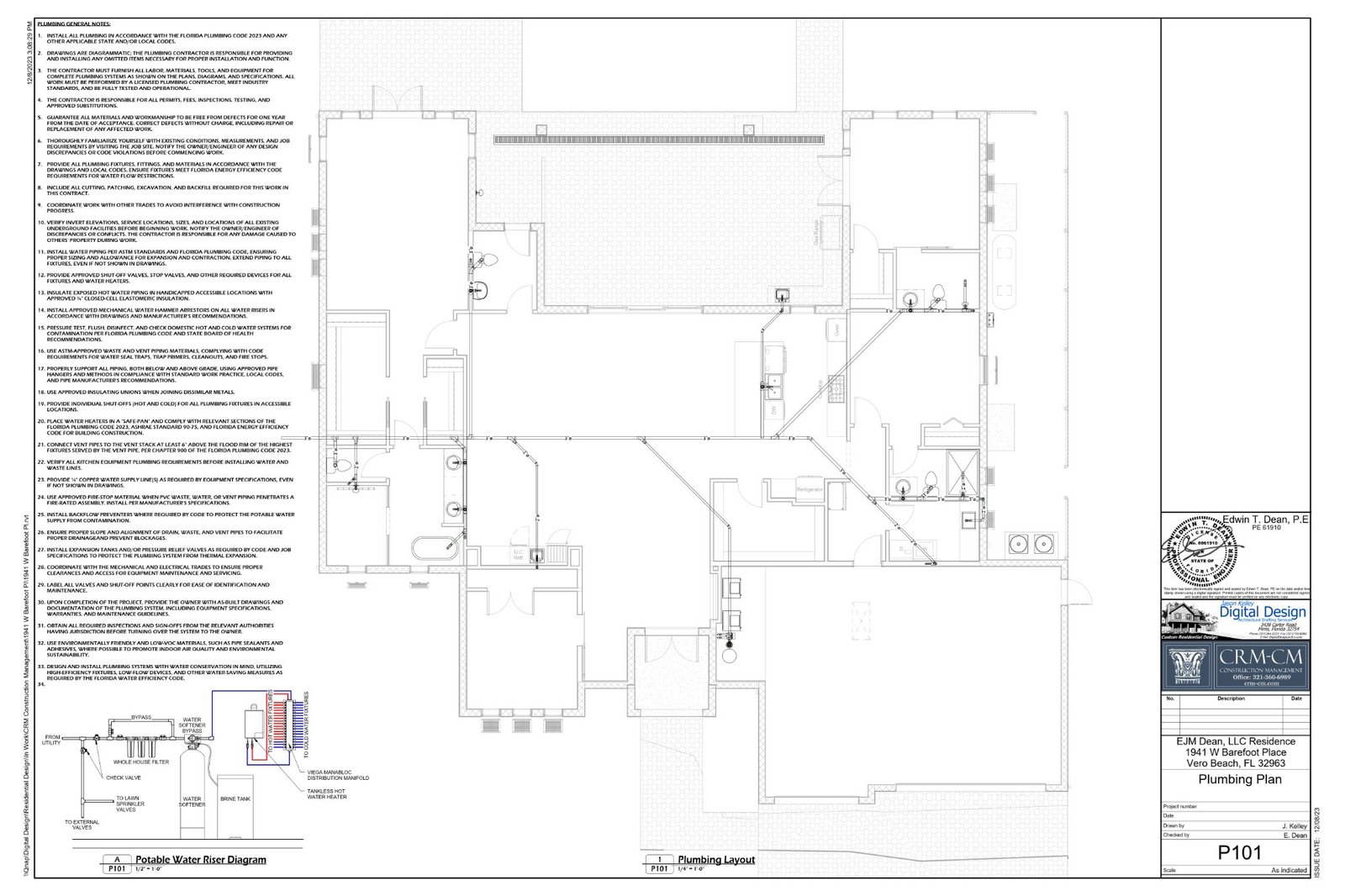
EJM Dean Residence
1941 W Barefoot Place  ·  Vero Beach, FL 32963  ·  December 2023
RS-6 Single Family
Indian River County
FBC 2023, 8th Ed.
121 MPH Wind Design
Septic / Well Site
Cover Page Floor Layout Elevations
G100  ·  Cover Page
EJM Dean Residence — 1941 W Barefoot Place, Vero Beach
Area Schedule
  • Living Area 3,073 SF
  • 3-Car Garage 875 SF
  • Rear Porch 755 SF
  • Covered Entry 59 SF
  • Total ~4,762 SF
Program
  • Master Suite + 2× WIC
  • Bedrooms 2 & 3 12'-0" Ceiling
  • Office 12'-0" Ceiling
  • Great Room Vaulted Ceiling
  • Grill / Outdoor Kitchen Area
  • IT Closet + Pantry + Laundry
  • 30kW Generator + EV Charger
Scope of Documents
  • Cover + General Notes G100–G101
  • Site Plan (Septic/Stormwater) C101
  • Floor Layout + Elevations A101–A202
  • Window/Door Schedule A301
  • Reflected Ceiling Plan A401
  • Foundation + Truss Layout S101–S102
  • Structural Details S201
  • Plumbing Plan + Riser P101–P201
  • Electrical Notes + Plan E100–E101
Complete Sheet Index — 15 Sheets
G100 Cover G101 General Notes C101 Site Plan A101 Floor Layout A201 Front/Rear Elev. A202 Side Elev. A301 Window/Door Sched. A401 Reflected Ceiling Plan S101 Foundation Plan S102 Truss Layout S201 Structural Details P101 Plumbing Plan P201 Plumbing Riser E100 Electrical Notes E101 Electrical Plan
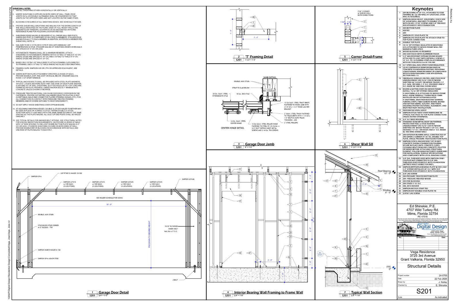
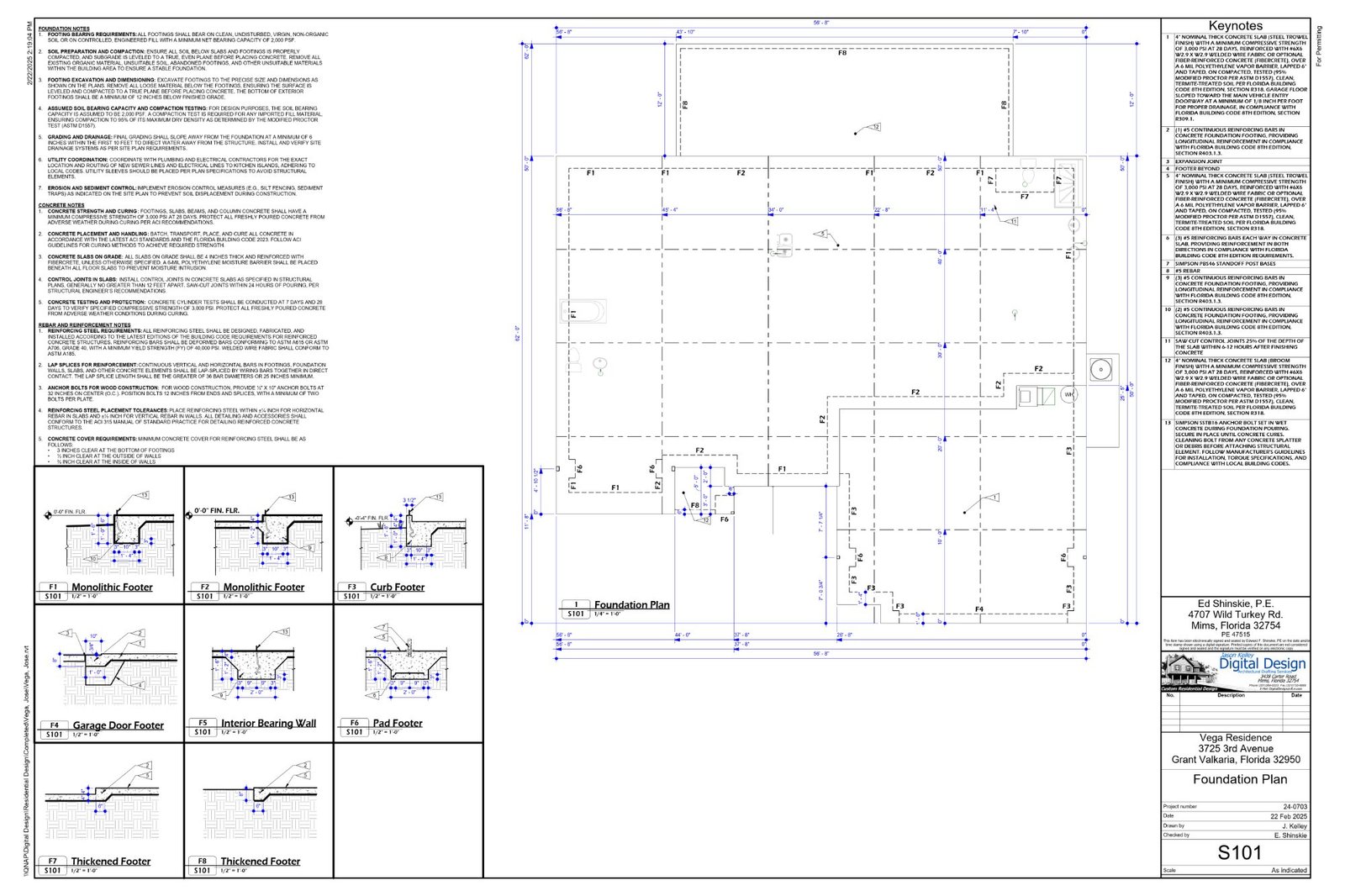
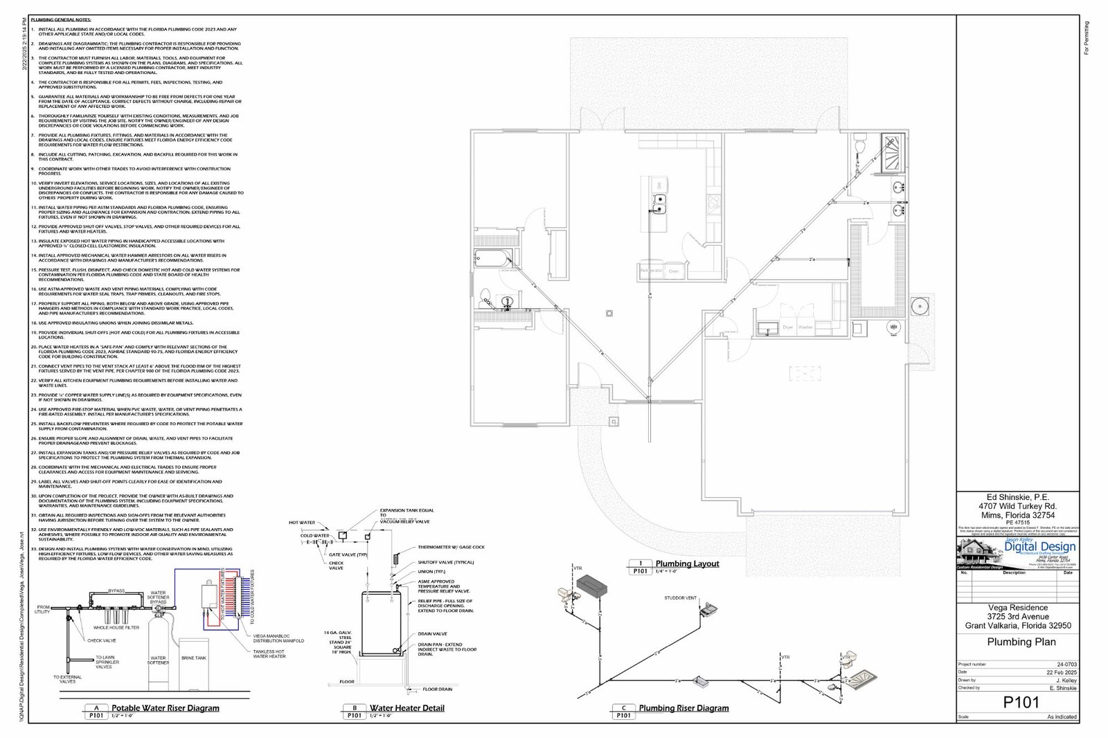
1-Story Custom Residence  ·  Metal Roof / Stucco  ·  Grant Valkaria
Vega Residence
3725 3rd Avenue  ·  Grant Valkaria, FL 32950  ·  Project No. 24-0763  ·  February 2025
RU-1-11 Single Family
Town of Grant Valkaria
FBC 2023, 8th Ed.
150 MPH Exposure C
200 AMP Service
Cover Page Floor Layout Elevations
G100  ·  Cover Page
Vega Residence — 3725 3rd Avenue, Grant Valkaria
Area Schedule
  • Living Area 1,794 SF
  • 2-Car Garage 619 SF
  • Entry 30 SF
  • Total 2,443 SF
Program
  • Master Bedroom + Walk-in 10'-0" Ceiling
  • Bedrooms 3 + Den/Bedroom 10'-0" Ceiling
  • Living Room 11' Coffered Ceiling
  • Kitchen + Dining Room 10'-0" Ceiling
  • Foyer 10'-0" Ceiling
  • Utility Room + Bath
  • Standing Seam Metal Roof Stucco Exterior
Scope of Documents
  • Cover + General Notes G100–G101
  • Floor Layout + Schedules A101
  • Building Elevations (4) A201
  • Reflected Ceiling Plan A401
  • Foundation Plan + Details S101
  • Roof/Truss Plan + Details S102–S201
  • Plumbing Plan + Risers P101
  • Electrical Notes + Plan E100–E101
Complete Sheet Index — 11 Sheets
G100 Cover G101 General Notes A101 Floor Layout + Schedules A201 Building Elevations A401 Reflected Ceiling Plan S101 Foundation Plan S102 Roof/Truss Plan S201 Structural Details P101 Plumbing Plan + Risers E100 Electrical Notes E101 Electrical Plan

What We Deliver

Custom Home Drawing
Capabilities

01
Full Permit-Ready Document Sets
Architecture, structural coordination, plumbing, electrical, mechanical notes — everything a building department requires in a single coordinated package.
02
Revit / BIM Workflow
All plans produced in Revit. Floor plans, reflected ceiling plans, elevations, sections, and 3D cutaway views generated from a single coordinated model.
03
Building Sections + 3D Views
Full longitudinal and transverse building sections paired with 3D isometric cutaway views — produced directly from the Revit model for maximum accuracy.
04
Coastal / Beachfront Expertise
150 MPH Exposure D wind design, FDEP sea turtle lighting compliance plans with fixture schedules and cutsheets, coastal glazing requirements, and stucco detailing.
05
Detailed Stair + Special Systems
Spiral stairs, open-tread steel stairs with glass guard rails, stairwell floor plan views, isometric details, and connection coordination with structural engineer.
06
Engineer of Record Coordination
All plans signed and sealed by Ed Shinskie, P.E. (PE 47515). Structural design coordination, load path documentation, and deferred submittal tracking included.
Ready to Start
Your Custom Home?
Send us your site, program, and budget — we'll put together a project review at no charge.
Request a Project Review →